Heladera One Door IntegrableBosch | 310 lts
$3.350.000
Precio sin imp. nac: $2.768.595
Agotado
Detalles Técnicos
| Marca |
Bosch |
|---|
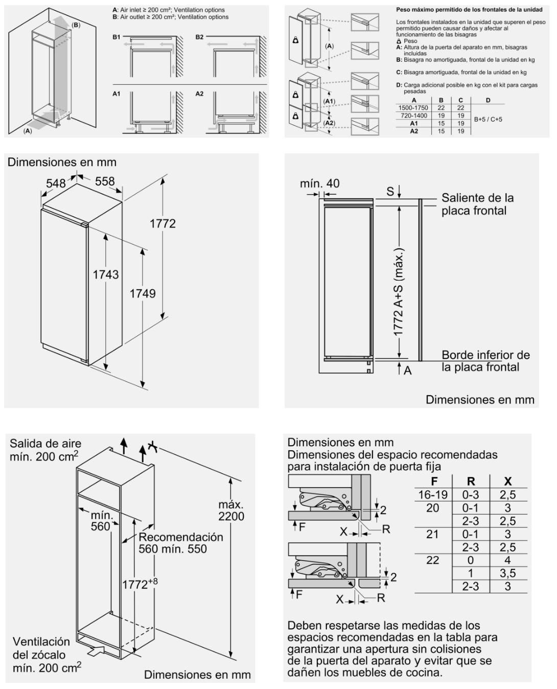
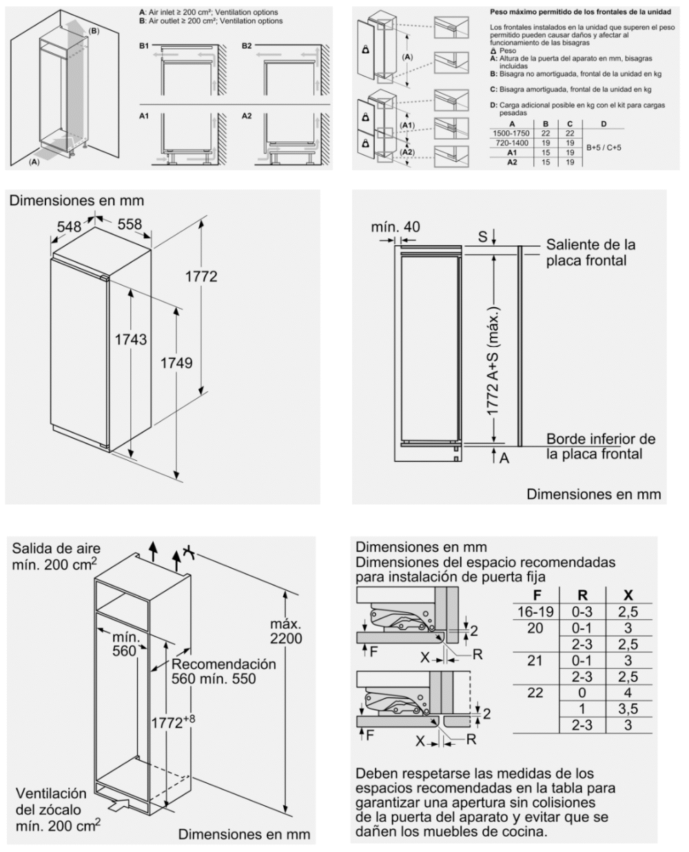
Heladera One Door Inegrable – 310 lts – Eficiencia A++ – Vita Fresh – Puerta Reversible – Cajon Big Box – Super Silenciosa solo 34 Db APTO LADO A LADO CON GIN81ACE0
Información extra
Productos relacionados
Heladera Inverter LG Side By Side 718l Smart Wifi Instaview Negro
Inventario disponible
$5.280.000
Precio sin imp. nac: $4.363.636
Heladera Nodor Combi Black De 60 Cm No Frost Inverter Sidebs
Inventario disponible
$2.419.000
Precio sin imp. nac: $1.999.174
Heladera Sbs Inverter Electrolux Flexispace Iq8s Inox 581l
Inventario disponible
$3.229.888
Precio sin imp. nac: $2.669.329
Heladera Nodor Combi Panelable De 60 Cm
SKU:
HAIL-TNF-177BI
Inventario disponible
$2.199.000
Precio sin imp. nac: $1.817.355



Nodor
Lavavajilla Bob
Heladeras
Cocina
Lavado
TV & AV
Hogar
Pequeños Electrodomésticos
Licuadoras
Pantallas y proyectores
Audio
